ADELANTE

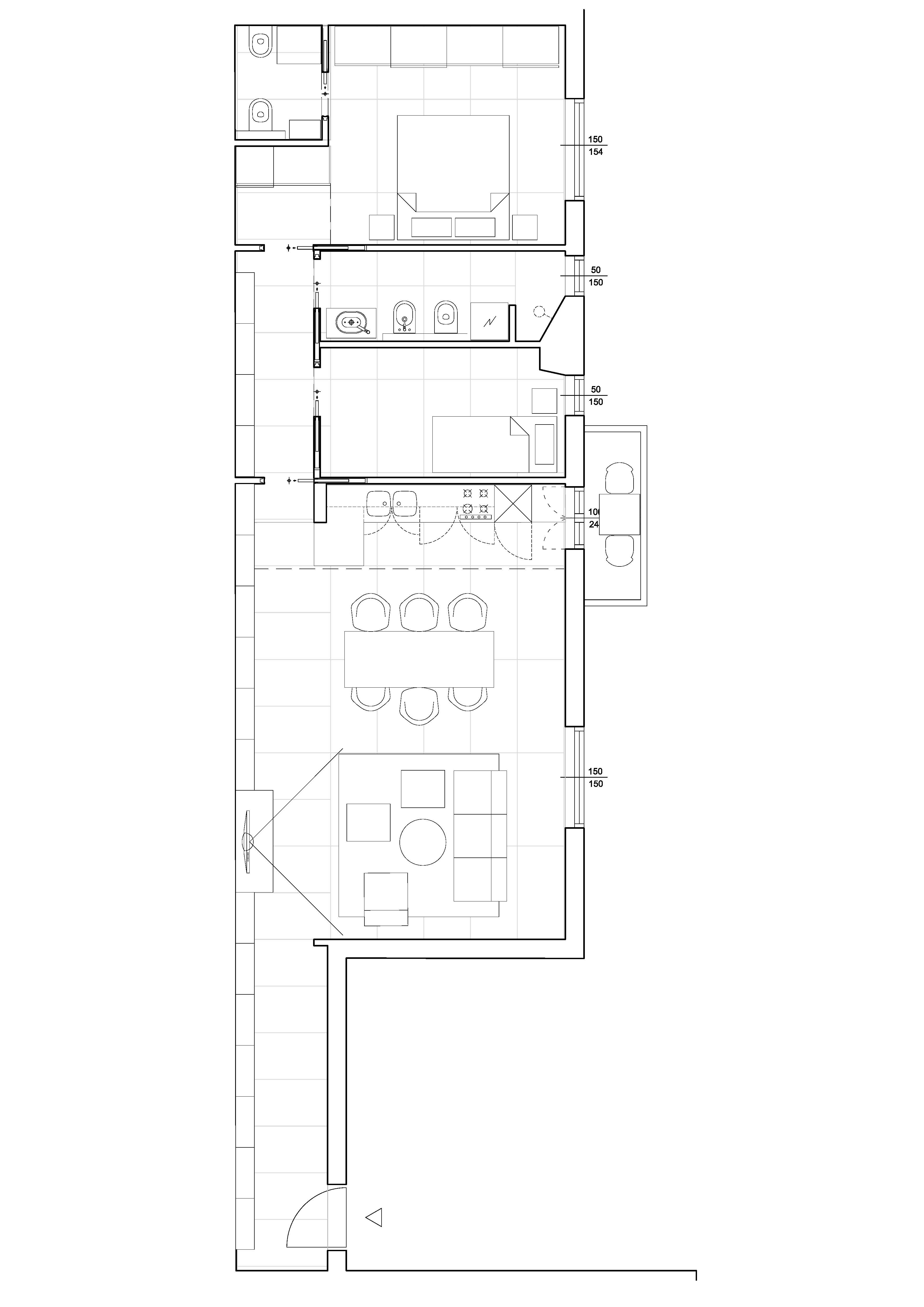
Apartment F

Program > interiors

Project status > ongoing

Year > 2018

Location > Milano

Author > Aleksandar Petrov

Team system > Krsto CetkovicSDF PRO Camera 1 apetCamera 2 apetFoto 29-08-18, 18 09 36 Foto 28-09-18, 08 49 01

Camera 1 apet